仕入れ前に必須のボリュームチェックします 都内の物件お任せ下さい。実績多数の一級建築士が対応。 イメージ1
仕入れ前に必須のボリュームチェックします 都内の物件お任せ下さい。実績多数の一級建築士が対応。 イメージ2
仕入れ前に必須のボリュームチェックします 都内の物件お任せ下さい。実績多数の一級建築士が対応。 イメージ3
1/3

仕入れ前に必須のボリュームチェックします

都内の物件お任せ下さい。実績多数の一級建築士が対応。

評価
販売実績
25
残り
1枠 / お願い中:3
プラチナ認定者の
サービス

直近3ヶ月で高い実績を維持した、信頼性の高い出品者のサービスです

提供形式
PDF・各種定型ファイル
お届け日数
要相談 / 約5日(実績)
初回返答時間
4時間以内(実績)
ジャンル
定期購入
可能
Yusuke0311
見積り相談
1ヶ月前
この度は大変素晴らしいボリュームプランをご作成頂き、誠にありがとうございました。 単なる図面作成にとどまらず、敷地条件や法規制を的確に捉えたうえで、収益性や実現可能性まで踏まえたプランニングをして頂き、非常に高い専門性を感じました。
ijutaka
見積り相談
6ヶ月前
今までココナラでボリュームプランを依頼した中で一番良かったです。 希望通りのプランを提案いただきました。
Deguchi Yuya
4ヶ月前
新築木造アパートのボリューム検討をお願いしましたが、的確で大変助かりました。結果、容積率を最大限消化でき、収益性の高いアパート計画ができました。間取り図も対応いただきそれを原案に満足のいく検討ができました。総合的に満足のサービスでオススメです。
出品者からの返信
Deguchi Yuya
3ヶ月前
リピート利用です。とても的確に長屋のボリュームプランを作成してくださり感謝いたします。私が期待していた内容+α(戸数確保)してくださり大変助かりました。また利用する際にはどうぞよろしくお願いいたします。
出品者からの返信
tk2_cafe
見積り相談
11ヶ月前
建物のボリュームチェックでをお願いしました。 要望が多い中でプランを描いてもらい、イメージを掴むことができました。 ありがとうございます。
仕入れ前に必須のボリュームチェックします 都内の物件お任せ下さい。実績多数の一級建築士が対応。 イメージ1
仕入れ前に必須のボリュームチェックします 都内の物件お任せ下さい。実績多数の一級建築士が対応。 イメージ1
仕入れ前に必須のボリュームチェックします 都内の物件お任せ下さい。実績多数の一級建築士が対応。 イメージ2
仕入れ前に必須のボリュームチェックします 都内の物件お任せ下さい。実績多数の一級建築士が対応。 イメージ3

サービス内容

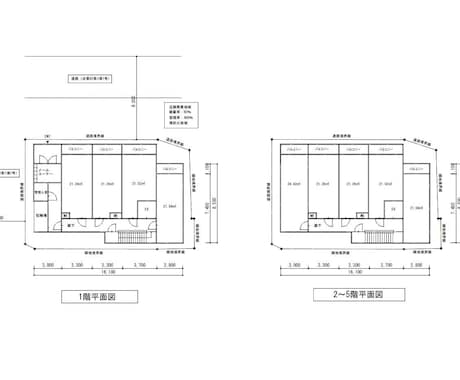
その土地、本当に最大限使えていますか? 建て方次第で戸数が変わるケースは珍しくありません。 本サービスでは、一級建築士が “収益最大化”を前提にボリュームチェックを行います。 【こんな方におすすめ】 ・不動産業者様(仕入れ担当) ・土地購入を検討中の方 ・投資用物件を検討している方 ●ご提供内容 ・最大延床面積の算出 ・最適な階数プラン ・法規チェック(用途地域・斜線等) ・見積り金額は共同住宅ワンルーム(戸数5戸から20戸程度)を想定しています。 ・敷地面積300㎡までは標準金額にて対応しております。 ●納期について 納期についてはおよそ3日程で納品しております。 (資料が整ってからとなります) ・下記、検討費用となりますのでご確認ください。 日影検討:¥8000 高度検討:¥8000 天空率検討:¥8000 急ぎ対応:¥10000 間取り作成(間取り2パターンの場合):¥15000 ●必要資料について ・敷地測量図や公図など敷地図を作成できる資料。  ※資料がない場合Googleマップを利用します。 ・敷地の情報:計画地住所、敷地面積、道路幅員、法規制  ※法規制など資料がない場合調べられる範囲内で作成します。   不動産屋さんからの資料などがあればご提示ください。 ・ご希望の内容:ワンルーム住居、ファミリー住居希望など。

購入にあたってのお願い

●購入にあたって ・日影検討、高度検討、天空率検討については不要になる場合もありますが作業が開始してからの追加となりますのでご了承ください。 ・軽微な修正は1回まで無料です。

有料オプション

15,000