土地活用、マンション用地の建築ボリューム作成します 基準法はもちろんの事、天空率や日影規制、条例等も考慮致します イメージ1
土地活用、マンション用地の建築ボリューム作成します 基準法はもちろんの事、天空率や日影規制、条例等も考慮致します イメージ2
土地活用、マンション用地の建築ボリューム作成します 基準法はもちろんの事、天空率や日影規制、条例等も考慮致します イメージ3
土地活用、マンション用地の建築ボリューム作成します 基準法はもちろんの事、天空率や日影規制、条例等も考慮致します イメージ4
土地活用、マンション用地の建築ボリューム作成します 基準法はもちろんの事、天空率や日影規制、条例等も考慮致します イメージ5
土地活用、マンション用地の建築ボリューム作成します 基準法はもちろんの事、天空率や日影規制、条例等も考慮致します イメージ6
土地活用、マンション用地の建築ボリューム作成します 基準法はもちろんの事、天空率や日影規制、条例等も考慮致します イメージ7
1/7

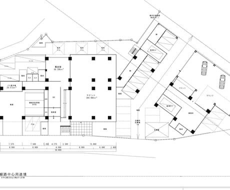
土地活用、マンション用地の建築ボリューム作成します

基準法はもちろんの事、天空率や日影規制、条例等も考慮致します

評価
販売実績
155
残り
4枠 / お願い中:0
プラチナ認定者の
サービス

直近3ヶ月で高い実績を維持した、信頼性の高い出品者のサービスです

提供形式
制作物 (+テキスト打ち合わせ)
お届け日数
8日(予定) / 約7日(実績)
初回返答時間
3時間以内(実績)
ジャンル
匿名
見積り相談
13日前
とにかくすぐに仕上げて下さったことと、費用的な面で満足しています。しかし、日中、連絡がとれないので困りました。連絡を取りやすい時間帯や、必ずメールチェックできる時間などを教えておいて欲しかったです。時間に余裕があるスケジュールなら待てますが、時間に余裕が無い...
ブルーベリーチーズケーキ
見積り相談
4ヶ月前
この度は迅速かつ丁寧にご対応いただき、ありがとうございました。 間取りについても複数パターンをご提案いただき、おかげさまでとても勉強になりました。 ココナラでサービスを利用したのは初めてでしたが、こちらの希望や質問にも都度分かりやすく回答していただき、安心し...
shujihigashigawa
見積り相談
19時間前
建築プランの作成をお願いしました。こちらの修正依頼(部屋数・面積配分の変更)にも柔軟に対応していただき、やり取りもスムーズでした。一度、修正前のファイルを誤送信するミスがありましたが、指摘後すぐに当日中に対応してくださいました。礼儀正しく丁寧なコミュニケーシ...
きなこもち1283
見積り相談
2ヶ月前
このたびは、ボリュームチェックありがとうございました。 不安な点があり何度も質問を重ねてしまいましたが、その都度、大変わかりやすく丁寧にご回答いただき、安心できました。 心より感謝申し上げます。ぜひまた次回もよろしくお願いいたします。
ijutaka
6ヶ月前
ボリュームとてもいい感じで出していただきました。 難しい土地でしたが、希望とおりに図面書いてもらいました。

サービス内容

土地活用や投資用マンション用地仕入れの判断材料として、簡易建築ボリュームを作成し、どのくらいの規模の建物が建築可能かご提案します! 【こんな方にオススメ!】 ・土地活用、不動産投資で賃貸マンションを検討しているが、どのくらいの規模の建物が建築可能か分からない ・業者に相談しているが納得のいくボリュームが出ていない ・相続で土地が手に入ったけど、有効活用できるのか知りたい ・業者と打ち合わせする際のセカンドオピニオンとして情報を知っておきたい などなど 土地活用の会社は利益のために高額で不経済なプランや建築の知識がない営業マンに作成させる会社もあるぐらいです ※私の会社もありました そのような不安も年間100件以上のボリュームチェックをする現役の建築士が解決致します! 日影・天空率等は計算ソフトを使用するので、正確なボリュームチェックが可能です また建築基準法はもちろん、計画地の条例や要綱なども考慮します オプションでCADデータも配布いたします 一回まで無料で修正可能です!

購入にあたってのお願い

・敷地がわかる資料をご用意ください 寸法等が正確になるほどボリュームの精度も上がります (個人情報保護のため住所等は消して構いません) ・用途地域がわかる資料をご用意ください ※住所等を非公開にする場合のみ ・前面道路の幅がわかる資料 ・2000㎡以上の物件は別途+3000円、納期+1~2日になります

有料オプション

9,500