足場計画図・仮設図面をJw_cadで作成します 監督経験有 施工性・安全性を考慮した“現場で使える”足場図面 イメージ1
足場計画図・仮設図面をJw_cadで作成します 監督経験有 施工性・安全性を考慮した“現場で使える”足場図面 イメージ2
足場計画図・仮設図面をJw_cadで作成します 監督経験有 施工性・安全性を考慮した“現場で使える”足場図面 イメージ3
1/3

足場計画図・仮設図面をJw_cadで作成します

監督経験有 施工性・安全性を考慮した“現場で使える”足場図面

評価
-
販売実績
0
残り
2枠 / お願い中:0
企画・構成
作成代行
添削
無料修正回数
2回
お届け日数
要相談
ジャンル
業種
言語

サービス内容

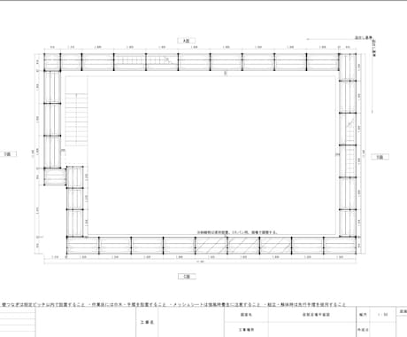
※設計行為は行わず、施工計画用の足場図面(仮設計画資料)を作成します。 現場監督経験があり、現在も足場工事・鉄筋工事を専門に請け負っているため、 実際の施工・安全管理を考慮した「現場で使える足場計画図」を作成します。 CADオペレーター目線ではなく、 監督・職長が見て分かりやすい図面構成を意識しています。 【対応内容】 ・足場計画図 ・仮設足場図面(平面図/立面図) ・既存図面の修正・清書 ・PDF、手書き図からのトレース 【使用CAD】 ・Jw_cad 【対応建物】 ・住宅/非住宅 ・新築/改修工事 【納期目安】 ・1〜3日(内容・規模により調整可能) ※お急ぎの場合もご相談ください。 【料金目安】 ・基本料金:5,000円〜 ※図面内容・規模によりお見積りいたします。 【ご依頼の流れ】 ① 図面資料(PDF・手書き等)をご提供ください ② 内容確認・お見積り ③ 作図・提出 ④ 修正対応(軽微な修正は対応可) 【安全配慮】 ・壁つなぎ、手摺、巾木、メッシュシート等、  安全面を考慮した表現・注記を行います。 まずはお気軽にご相談ください。

購入にあたってのお願い

【購入にあたってのお願い】 ・本サービスは、設計行為ではなく施工計画用の足場図面(仮設計画資料)の作成代行です。  確認申請・構造検討を伴う設計業務は行っておりません。 ・ご購入前に、以下の資料をご共有ください。  (PDF、手書き図、既存図面、写真等)  ※資料が不足している場合、作図ができないことがあります。 ・基本料金は、A3サイズ/図面1枚・簡易足場計画図を想定しています。  図面枚数の追加や内容変更がある場合は、事前にお見積りいたします。 ・軽微な修正は2回まで無料で対応いたします。  大幅な内容変更、図面追加、仕様変更は別途料金が発生します。 ・通常納期は3日程度です。  お急ぎの場合は、短納期オプションをご利用ください。 ・円滑なやり取りのため、原則テキストでのご連絡をお願いしております。  内容が複雑な場合は、有料にてビデオチャット打合せも対応可能です。 ・完成データ提出後の大幅な修正、または  事前共有内容と異なる条件での作り直しは追加料金となります。 ご不明点がございましたら、ご購入前にお気軽にご相談ください。

有料オプション

5,000