会社の顔、エントランスの位置の重要性について

記事
ビジネス・マーケティング
こんにちわ!
現役オフィス専門デザイナーを職業としています、
竜胆一色と申します。

以前の記事で、
エントランスにはいろいろ種類があって役割が与えられている。
とお話したことがあります。

では、エントランスの位置についてはどうでしょうか?
この記事ではエントランスの位置はどこに設定すれば良いのか。
どのように考えればいいのか解説していきます。

エントランスの位置は超重要!

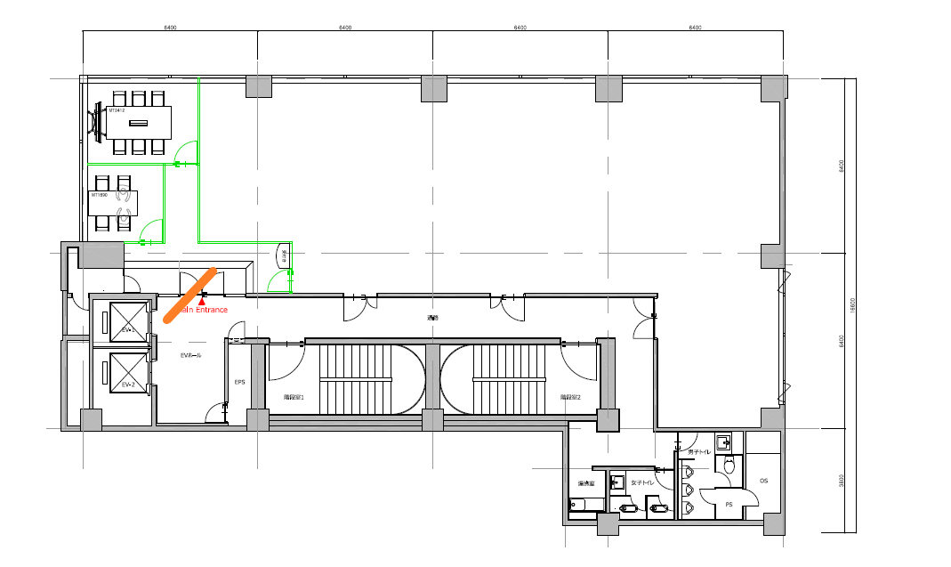
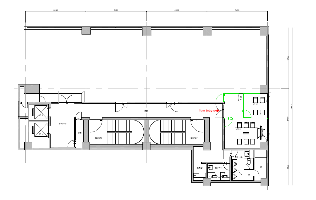
まず下の2枚の画像をご覧ください。
(ワンフロア貸しで自由にエントランスを決めることができる物件です)
スクリーンショット 2022-02-01 145558.png
スクリーンショット 2022-02-01 145535.png

同じ躯体だけど、会議室の位置が左側と右側にあります。
では、ここで問題です!
会議室の位置が左側と右側では、どちらが正しいでしょうか
|
|
|
|
|
|
|
|
|
|
|
|
正解はどちらも正しい!です。
なんかすみません笑

ただし!どちらがより良い位置のエントランスか?は明確に答えがあります。
それは「会議室が左側」にある図面だと言えます。

エントランスの位置の重要性

question-mark-g78dc405e3_1920.jpg

ではなぜそう言い切れるのでしょうか?
それは「エレベーターから出てすぐにあるから」です。

エレベーターから出てすぐ見つけられない奥にエントランスがあるより、
出てすぐ分かる手前にエントランスがあるほうが、
来客者は迷わずに訪問することができます。
スクリーンショット 2022-02-01 145558aa.png
スクリーンショット 2022-02-01 145535aa.png

また、もう少し大きいビルで他のテナントと同居するフロアだとしても、
エレベーター近くにエントランスがあると、
目に入るためリクルーティングや認知度の向上にも繋がります。
華やかなエントランスだとさらに目を引いて認知されやすくなります。

まとめ

エントランスの位置が間接的に良い効果を生むことがわかりました。
たかがエントランス、されどエントランスなのです。

みなさんもまずは、相手の顔を見ますよね?それと似たようなものなのです。
もし事務所の引っ越しを検討している場合、こういったことも考慮してみてはいかがでしょうか。

わたくし竜胆一色は、このような悩みを解決することができます。
一度ご相談だけでもどうでしょうか?

ぜひ、相談メッセージをお待ちしています。

サービス数40万件のスキルマーケット、あなたにぴったりのサービスを探す ココナラコンテンツマーケット ノウハウ記事・テンプレート・デザイン素材はこちら