一級建築士が紙やPDFの図面をCADデータ化します 古い図面などを綺麗にデータ化します イメージ1
1/1

一級建築士が紙やPDFの図面をCADデータ化します

古い図面などを綺麗にデータ化します

評価
販売実績
16
残り
2枠 / お願い中:0
プラチナ認定者の
サービス

直近3ヶ月で高い実績を維持した、信頼性の高い出品者のサービスです

商用利用
著作権譲渡
印刷・配送
無料修正回数
1回
ラフ提案数
ラフ提案なし
お届け日数
要相談 / 約7日(実績)
用途
業種
ファイル形式
PDF / DXF / DWG / JWW
匿名
見積り相談
3ヶ月前
手書きの図面からご丁寧に対応して頂き図面作成ありがとうございました。やり取りもスムースで安心してお任せすることができました。また機会がございましたらよろしくお願いいたします。
出品者からの返信
ayaiwcfmd
見積り相談
1年前
少ない情報の中、又年末年始を挟んだお忙しい時期に予定より早く図面を仕上げて頂きました。価格も仕上がりも満足のいく物でした。ありがとうございました。
出品者からの返信
hiroricious
見積り相談
8ヶ月前
いつもとても丁寧に対応してくださり 助かってます。また機会がありましたら よろしくお願いします。
出品者からの返信
女性
見積り相談
1年前
ありがとうございました。 また細かな部分などご相談させていただくかもしれませんが、またよろしくお願い致します。
出品者からの返信
valtex kageyama
見積り相談
9ヶ月前
この度はご丁寧なご対応を頂きましてありがとう御座いました。 また機会が御座いましたら宜しくお願い致します。
出品者からの返信

サービス内容

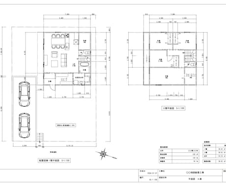
【こんな使い方が出来ます】 ・建物が古く、手描き図面しかないものをCADデータ化 ・不動産屋から出てきた図面がPDFしかないので、改修図面を描くための下準備としてCADデータ化 ・現場で寸法を測量してきたメモをCADデータ化 ・簡単に手書き作成したプランをお客様に見せるために図面化 【基本仕様】 ・枚数︰1枚 ・縮尺:1/100 ・用紙サイズ :A3 ・基本建築図(配置図、平面図、立面図、断面図等) ※この内容でオプションなし価格です。 【オプション】 ・その他の建築図面(展開図、詳細図など) ・その他の分野の図面(構造図、設備図など) ・その他の縮尺、用紙サイズ ※費用をご相談ください。 【納期】 ・図面を確認してからご回答させていただきます。混み具合によりますが、基本仕様であれば1枚平日3日程度で出来ると思います。 ・修正はこちらのミスの場合は行います。図面に赤描きにてご指摘下さい。   【データ形式】 ・JWW、DXF、DWG ・PDFも可能です。

購入にあたってのお願い

・まずは図面をご用意の上ご相談下さい。作成可能かどうか、納期等打合せ出来ればと思います。 ・文字、寸法等読めない部分は読めない旨を図示、もしくは質疑として連絡します。不要であれば文字自体を削除します。(曖昧を回避するためです) ・手書きスケッチは方眼紙に書いてあるとトレースしやすいですが、寸法の指示をして頂ければデータ化できます。 数値など辻褄が合わなくてもある程度想定して対応します。 ・オプションを使用する場合はご相談下さい。 【要注意】 ・レイヤ分けはこちらで判断します。特に分けて欲しい部分があれば教えてください。 ・基本的な仕上げは添付の作図イメージ図をご覧下さい(基本的にはそのまま描きますが、細かい場合は図面に対して必要な情報をピックアップして簡略化します) ・家具や植栽などは保有しているデータを使います。 「ここは絶対書いて欲しい」などこだわりがあればご指示下さい。
7,000