【サービス紹介】総合図作成

記事
デザイン・イラスト

設計図をもらったら総合図を依頼しませんか?

 現場がスタートするまで、まだ時間があるし自分でやろうかな。
なんて思っている施工担当者さんもいると思います。
 自分で検討しながら配置できるメリットはありますが、設計図のプロットを一つにまとめて整理する。単純ですが地味に時間のかかる作業です。

 エレキャドに任せてもらえれば、前の現場が伸びても安心ですし、複数の現場を同時に管理することも出来ます。

作成手順

①設計図のCADデータと最新の建築図(なければ設計図を利用)を頂きます。
※配線図、竣工図のご依頼を考えている場合は、Tfasの部品登録作業が入ります。
※Tfas 化は、シンボル数の多い設備Aで、20,000円(A1 1/100)設備Bで、10,000円(A1 1/100)です。

②各設備のシンボルを壁床、天井にわけて、まとめます。
※シンボルのレイヤーは「(S)電灯」「(S)コンセント」などシンボルの(S)に設備名とします。希望があればお申し付けください。

③位置を調整します。
※コンセントはスイッチの下、スイッチは扉から200、壁を挟んで向かい合わせのシンボルは100ずらすなど、基本的な調整をします。
スクリーンショット 2024-08-24 104321.png


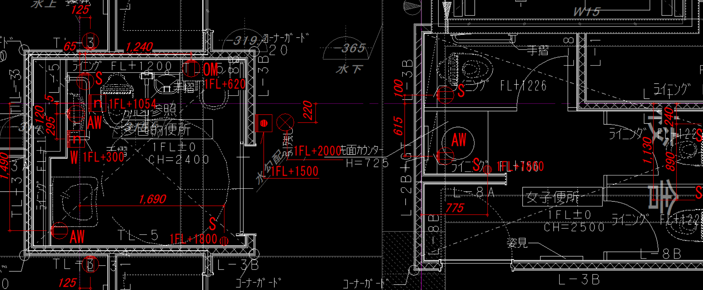
寸法入れもお任せください

おさまりの検討が終わったら寸法を記入します。
壁床は壁面と通り芯から、天井は通り芯からの寸法を記入します。
ご希望があればご指示ください。
※こちらは別料金で「図面修正」でのオーダーになります。

料金

A1 1/1OOで壁床、天井各1枚30,000円です。

時は金なり

前の現場が伸びてしまい、図面に手を付けられなかったというお話を良く耳にします。
地味に時間のかかる作業です。
是非エレキャドをご活用ください
サービス数40万件のスキルマーケット、あなたにぴったりのサービスを探す ココナラコンテンツマーケット ノウハウ記事・テンプレート・デザイン素材はこちら